Rozcestník

  • Hlavní menu
  • Menu rubriky
  • Obsah
hledat telefon email
mapa webu rejtřík
Znak městyse

Městys

VELKÉ NĚMČICE

oficiální stránky

Úřední hodiny:    Po a St    7.30–12.00   12.30–17.00 

mapa webu rejtřík
MENU
Přeskočit hlavní menu
  • ÚŘAD
    Úřední deskaMěstys Velké NěmčiceÚřad on-lineÚřad městyseOchrana obyvatelstvaGDPR
  • SAMOSPRÁVA
    Zastupitelstvo a rada městysePřehled usnesení zastupitelstva městyseVýbory a komiseVolbyVzdělaný zastupitelPřehled usnesení rady městyseTermíny zasedání zastupitelstva městyse
  • ŽIVOT V OBCI
    AktualityKalendář akcí Sportovní halaKulturní důmAnketaProjektyZpravodajFotogalerieMapový portálInfokanálEnergetické štítky budovKroniky Velkých Němčic
  • INFORMACE
    HistorieMUNIPOLISDůležité kontaktyFirmy a instituceFormulářeOdpadové hospodářstvíSeznam organizací
Konec menu
KONTAKT
ŽIVOT V OBCI

ŽIVOT V OBCI

  1. Úvodní stránka
  2. Život v obci
  3. Projekty
  4. Rekonstrukce zámku ve Velkých Němčicích-varianta č.1
Velikost písma:
  • A
  • A+

Projekty

Rekonstrukce zámku ve Velkých Němčicích-varianta č.1

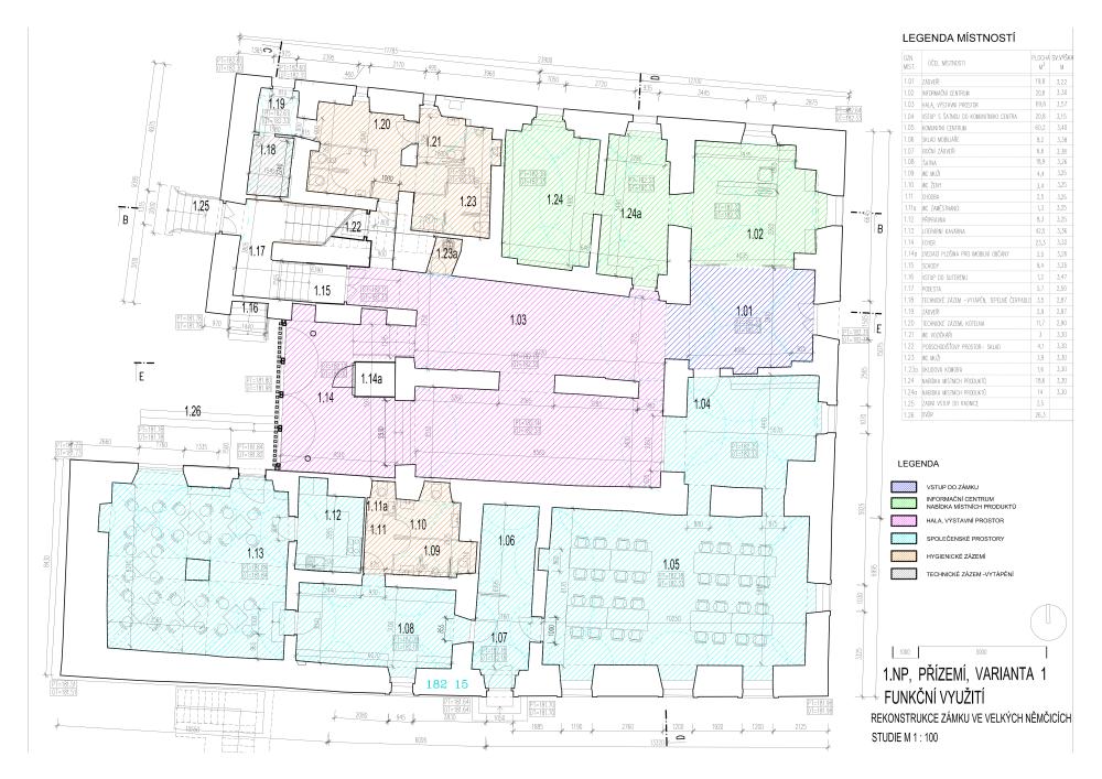
ikona a.Funkční využití 1.NP Varianta1 [PDF 245.1 kB]

ikona c.Funkční využití-suterém Varianta 1 (2) [PDF 90.73 kB]

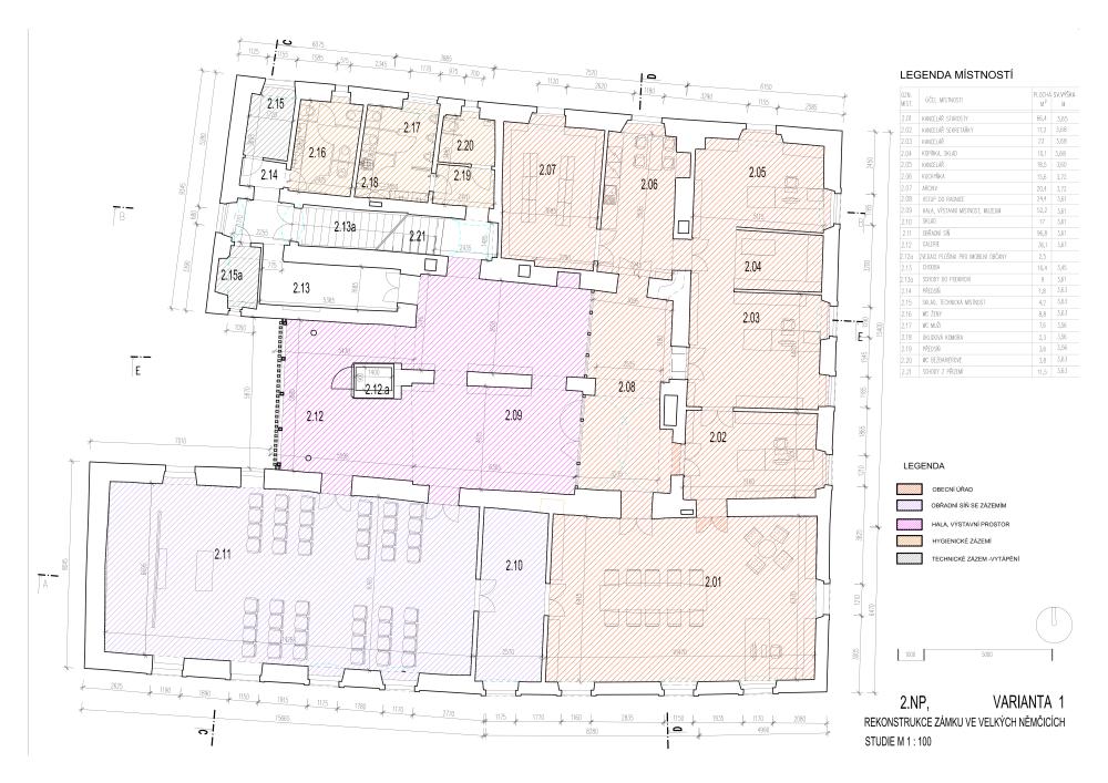
ikona e.Funkční využití-2.NP Varianta 1 [PDF 176.88 kB]

ikona g.Funkční využití-Podkroví Varianta 1 [PDF 180.19 kB]

ikona i. Řez B-B Varianta 1 [PDF 125.71 kB]

ikona k.Řez C-C Varianta 1 [PDF 108.11 kB]

ikona m.Řez E-E Varianta 1 [PDF 90.86 kB]

ikona o.Pohledy, Varianta 1 [PDF 32.88 kB]

ikona q.Pohled severní Varianta 1 [PDF 26.94 kB]

ikona s.Pohled Jižní Varianta 1 [PDF 25.48 kB]

Fotografie

STAV PROJEKTU

Zahájení
Příprava
Realizace
Výběrové řízení
Ukončení

Legenda

  Nezahájeno.
  Právě probíhá.
  Ukončeno.

Zpět na Projekty

Přeskočit menu:
  • Aktuality
  • Kalendář akcí
  • Sportovní hala
  • Kulturní dům
  • Anketa
  • Projekty
  • Zpravodaj
  • Fotogalerie
  • Mapový portál
  • Infokanál
  • Energetické štítky budov
  • Kroniky Velkých Němčic
Konec menu

Kam dál?

ŽIVOT V OBCI

ODKAZY

Organizace, zájmové spolky, ostatní

  • ZŠ Velké Němčice
  • MŠ Velké Němčice
  • Mateřské centrum Pupíci
  • Zahrádkáři Velké Němčice
  • Sokol Velké Němčice
  • Orel Velké Němčice
  • Knihovna Velké Němčice
  • Jídelna Velké Němčice
  • Move Around
  • SDH Velké Němčíce
  • Chasa Velké Němčice
  • Tenisový klub Velké Němčice
  • Kroužek tenisu
  • Zprávičky z Velkých Němčic
  • Bazar Velké Němčice
  • Němčická lavečka
MUNIPOLIS
KOMETA
KRIZPORT
TopGis
RTVJ
KTS
 Návštěva lékaře.cz
ROP
JMK

PORUCHY

Elektřina, plyn, TV, vodovod, silnice

 eg.d

800 22 55 77

GasNet

1239

VaK Břeclav

519 810 000
(nonstop)

NOEL

518 359 635
607 866 813

SUS

519 361 131
519 327 600
737 237 134

Znak městyse
Městys

VELKÉ NĚMČICE

značka
Městečko 85
Velké Němčice 69163
Telefon: 519 418 951
E-mail: obec@velkenemcice.cz
aktovka
Datová schránka: xtvbsjt

UŘEDNÍ HODINY

Pondělí    7.30–12.00 12.30 - 17.00
Středa 7.30–12.00 12.30–17.00

 

FACEBOOK
YOUTUBE

O WEBU

  • Mapa stránek
  • Kontakty
  • Prohlášení o přístupnosti
  • Ochrana osobních údajů
  • Cookies
  • Kontakt na administrátora

ODBĚR AKTUALIT

Přihlašte se k odběru aktualit na Váš e-mail:

Informace o zpracování osobních údajů

Čas poslední aktualizace: 19. 3. 2026 15:24

Vyrobeno v Origine

Top